Mẫu nhà ống 5x20m 2 tầng với phối cảnh hiện đại, công năng khoa học cùng với mức chi phí đầu tư hợp lý đã giúp nhiều gia đình có thêm nhiều phương án cho việc triển khai công trình. Hãy cùng chúng tôi tìm hiểu và khám phá hồ sơ thiết kế chi tiết của dự án, để lên ý tưởng cho gia đình mình trong tương lai.
THIẾT KẾ MẪU BIỆT THỰ VÀ NHÀ ỐNG ĐẸP
Kiến Tạo Việt - Công ty tư vấn thiết kế mẫu nhà ống đẹp hiện đại mang phong cách trẻ trung, năng động và giàu tính sáng tạo với công năng linh hoạt thuận tiện. Liên hệ : 0903.22.1369
Thứ Năm, 15 tháng 10, 2020
Thứ Tư, 26 tháng 2, 2020
Giới thiệu mẫu biệt thự 3 tầng 10x13m tân cổ điển mái thái
Yêu cầu: Tôi hiện có lô đất rộng 12x16m, dự định xây dựng một ngôi biệt thự cao 3 tầng có diện tích là 10x13m theo phong cách tân cổ điển mái thái. Các công năng trong ngôi nhà gồm có: Phòng khách, bếp ăn, 4 phòng ngủ, 1 phòng SHC, 1 phòng karaoke, 1 phòng thờ và các công trình phụ. Chi phí dao động từ 2.1-2.3 tỷ đồng. Mong các kiến trúc sư tư vấn cho tôi phương án bố trí mặt bằng công năng và kiến trúc mặt tiền phù hợp.
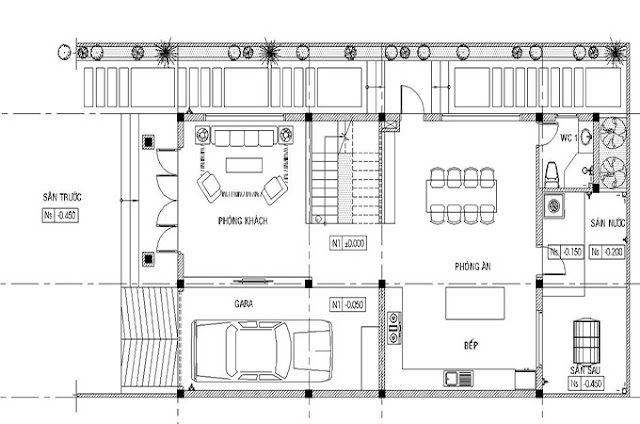
Mặt bằng tầng 1: Phòng khách, bếp ăn, 1 phòng ngủ khép kín, 1 wc chung. Cửa chính tiến vào là phòng khách rộng rãi. Giữa phòng khách và bếp ăn là khoảng tiền sảnh khá rộng, dẫn ra cửa phụ ở mặt tiền bên. Cạnh tiền sảnh là khu vực cầu thang bộ, gầm thang được bố trí 1 tiểu cảnh khô và 1 wc chung, cửa phòng ngủ mở ra gầm thang.
Tầng 2: Được bố trí 3 phòng ngủ trong đó 1 phòng ngủ master có phòng thay đồ và vệ sinh khép kín bên trong. 2 phòng ngủ còn lại nhỏ hơn 1 chút . Sảnh thang được sử dụng làm phòng sinh hoạt chung và có 1 nhà vệ sinh chung nằm ngay cạnh cầu thang.
Tầng 3: Gồm phòng thờ, chỗ tập thể dục thể thao, sân phơi. Và có một góc nhỏ làm sân phơi, tiêu cảnh, lúc rảnh rỗi bạn có thể ra đây thư giãn.
Biệt thự 3 tầng tân cổ điển hiện lên với một dáng vẻ thật thanh lịch, trang nghiêm, đậm chất phương Tây. Nó đã thực sự hội tụ đầy đủ sự tinh tế và sang trọng nhờ cách tạo dựng bố cục và họa tiết hoa văn trang trí cũng được KTS chăm chút rất kỹ càng.
Nét cổ điển được lược bỏ ít nhiều thay vào đó là những đường nét thẳng vuông vức, kiến trúc được gọn gàng, tinh tế hơn. Mỗi không gian trong ngôi nhà vẫn có được sự thông thoáng cũng như đầy đủ ánh sáng tự nhiên nhờ những khung cửa sổ lớn hướng tầm nhìn ra xung quanh ngôi nhà.
Ban công với thiết kế đơn giản gọn gàng, nhìn ra khoảng sân vườn tràn ngập cây cối tươi xanh bao quanh. Đẹp bên ngoài, sang trọng bên trong, ngoài chức năng để ở ra thì không gian còn có không gian xanh. Tạo cảm giác nơi ở tiện nghi yên bình cho gia chủ.
https://www.vingle.net/posts/2772752
https://www.vingle.net/posts/2777423
https://trello.com/c/5zA9Zzo0/8-biet-thu-3-tang-126m2-phong-cach-hien-dai
https://trello.com/c/s4Y7iAJS/9-biet-thu-3-tang-110m2-tan-co-dien-o-soc-son
https://gallery.autodesk.com/projects/147209/thiet-ke-kien-truc-nha-biet-thu-3-tang-105m2-tan-co-dien
Kiến trúc sư lên phương án bố trí mặt bằng công năng
Ngay sau khi tiếp nhận yêu cầu tư vấn và thiết kế mẫu biệt thự đẹp. Đội ngũ KTS đã bắt tay vào lên phương án bố trí công năng ở các tầng như sau:Mặt bằng tầng 1: Phòng khách, bếp ăn, 1 phòng ngủ khép kín, 1 wc chung. Cửa chính tiến vào là phòng khách rộng rãi. Giữa phòng khách và bếp ăn là khoảng tiền sảnh khá rộng, dẫn ra cửa phụ ở mặt tiền bên. Cạnh tiền sảnh là khu vực cầu thang bộ, gầm thang được bố trí 1 tiểu cảnh khô và 1 wc chung, cửa phòng ngủ mở ra gầm thang.
Tầng 2: Được bố trí 3 phòng ngủ trong đó 1 phòng ngủ master có phòng thay đồ và vệ sinh khép kín bên trong. 2 phòng ngủ còn lại nhỏ hơn 1 chút . Sảnh thang được sử dụng làm phòng sinh hoạt chung và có 1 nhà vệ sinh chung nằm ngay cạnh cầu thang.
Tầng 3: Gồm phòng thờ, chỗ tập thể dục thể thao, sân phơi. Và có một góc nhỏ làm sân phơi, tiêu cảnh, lúc rảnh rỗi bạn có thể ra đây thư giãn.
Bản vẽ phối cảnh 3D biệt thự 3 tầng 130m2 tân cổ điển
Biệt thự 3 tầng tân cổ điển hiện lên với một dáng vẻ thật thanh lịch, trang nghiêm, đậm chất phương Tây. Nó đã thực sự hội tụ đầy đủ sự tinh tế và sang trọng nhờ cách tạo dựng bố cục và họa tiết hoa văn trang trí cũng được KTS chăm chút rất kỹ càng.
Nét cổ điển được lược bỏ ít nhiều thay vào đó là những đường nét thẳng vuông vức, kiến trúc được gọn gàng, tinh tế hơn. Mỗi không gian trong ngôi nhà vẫn có được sự thông thoáng cũng như đầy đủ ánh sáng tự nhiên nhờ những khung cửa sổ lớn hướng tầm nhìn ra xung quanh ngôi nhà.
Ban công với thiết kế đơn giản gọn gàng, nhìn ra khoảng sân vườn tràn ngập cây cối tươi xanh bao quanh. Đẹp bên ngoài, sang trọng bên trong, ngoài chức năng để ở ra thì không gian còn có không gian xanh. Tạo cảm giác nơi ở tiện nghi yên bình cho gia chủ.
Nguồn: Sưu Tầm
https://www.buzzfeed.com/thienai123/thiat-ka-nha-van-2-tang-80m2-phong-cac-86lcy31b0vhttps://www.vingle.net/posts/2772752
https://www.vingle.net/posts/2777423
https://trello.com/c/5zA9Zzo0/8-biet-thu-3-tang-126m2-phong-cach-hien-dai
https://trello.com/c/s4Y7iAJS/9-biet-thu-3-tang-110m2-tan-co-dien-o-soc-son
https://gallery.autodesk.com/projects/147209/thiet-ke-kien-truc-nha-biet-thu-3-tang-105m2-tan-co-dien
Thứ Tư, 30 tháng 10, 2019
Biệt thự 2 tầng mái thái phong cách tân cổ điển đẹp miễn chê
Nhà mái thái phù hợp với đa dạng phong cách thiết kế khác nhau, từ hiện đại, tân cổ điển cho tới cổ điển. Mỗi một mẫu nhà lại toát lên sự duyên dáng và sang trọng khác nhau. Để tiếp thêm cho bạn đọc nhiều ý tưởng nhà đẹp mới, ngày hôm nay chúng tôi sẽ gửi tới quý bạn đọc một mẫu biệt thự 2 tầng mái thái tân cổ điển diện tích 8x17m 4 phòng ngủ ngay sau đây.
Phong cách tân cổ điển từ lâu đã để lại ấn tượng vô cùng sâu sắc với chủ đầu tư. Bởi vẻ đẹp dịu dàng, nhẹ nhàng mà thanh thoát. Không đơn giản như phong cách hiện đại cũng không quá cầu kì như phong cách cổ điển.
Biệt thự 2 tầng tân cổ điển còn trở nên kiêu xa hơn khi kết hợp với hệ mái thái lợp ngói. Quan sát từ mặt trước nhìn lên, 3 khối mái chữ A tựa lưng nhau tạo nên một khối vô cùng vững chắc. Phần dưới mái còn được trang trí thêm những đường nét nhẹ nhàng, con sơn giả gỗ màu nâu cũng tạo nên điểm nhấn.
Phần chân tường được ốp thêm đá granit tự nhiên cao cấp, có độ cứng chắc và độ bền cao, khả năng chịu lực tốt mang đến tác dụng chịu lực mạnh mẽ mẽ lên bề mặt mà hoàn toàn không bị biến dạng.
Bao gồm: phòng khách, phòng bếp ăn, 2 phòng ngủ, phòng tắm + vệ sinh.
Kiến trúc ngoại thất biệt thự 2 tầng mái thái phong cách tân cổ điển
Biệt thự 2 tầng tân cổ điển còn trở nên kiêu xa hơn khi kết hợp với hệ mái thái lợp ngói. Quan sát từ mặt trước nhìn lên, 3 khối mái chữ A tựa lưng nhau tạo nên một khối vô cùng vững chắc. Phần dưới mái còn được trang trí thêm những đường nét nhẹ nhàng, con sơn giả gỗ màu nâu cũng tạo nên điểm nhấn.
Phần chân tường được ốp thêm đá granit tự nhiên cao cấp, có độ cứng chắc và độ bền cao, khả năng chịu lực tốt mang đến tác dụng chịu lực mạnh mẽ mẽ lên bề mặt mà hoàn toàn không bị biến dạng.
Biệt thự 2 tầng mái thái sử dụng màu vàng kem làm màu chủ đạo. Kết hợp cùng một số màu trung tính trong thiết kế mang đến sự trẻ trung mà không kém phần thanh lịch.
- Các mẫu biệt thự 2 tầng mái dốc đẹp miễn chê
- Thế nào là nhà mái thái?
Mặt bằng công năng biệt thự 2 tầng mái tháiT
Tầng 1:
Bao gồm: phòng khách, phòng bếp ăn, 2 phòng ngủ, phòng tắm + vệ sinh.
- Phòng khách nằm ngay cạnh cửa chính, người ngồi bên trong có thể thấy được toàn bộ cảnh vật thiên nhiên bên ngoài.
- 2 phòng ngủ được thiết kế nằm so le khá ấn tượng, đồng thời giúp tạo được khoảng hành lang riêng tương đối rộng rãi bên trong biệt thự.
- Khu bếp ăn được đặt ở cuối nhà tạo không gian nấu nướng riêng. Cửa mở ra sân bên giúp thông gió, không gian thêm phần thoáng mát.
Tầng 2:
Tại tầng 2 của mẫu biệt thự đẹp được bố trí gồm có các công năng như sau: phòng thờ, 2 phòng ngủ, WC, bên ngoài là ban công lớn.
- Hướng bàn thờ trùng với hướng nhà giúp đảm bảo phong thủy tối ưu dành cho ngôi nhà. Từ phòng thờ cũng đi ra được ban công, tạo được độ thoáng không khí cho căn phòng này.
- 2 phòng ngủ nhỏ nằm ở 2 góc nhà chéo nhau, dùng chung 1 nhà vệ sinh lớn
Nguồn: Sưu Tầm
Thứ Tư, 23 tháng 10, 2019
Biệt thự vườn 2 tầng mái thái mặt tiền 8m
Mẫu biệt thự vườn 2 tầng mái thái được cách tân để phù hướng với xu hướng thiết kế nhà hiện đại. Sở hữu những đường nét giản dị cùng cách sắp xếp vô cùng tinh tế và bố trí công năng hợp lý tiện dụng trong sinh hoạt của gia chủ. Đã khiến gia chủ vô cùng hài lòng với mẫu thiết kế nhà đẹp này.
Hình ảnh phối cảnh biệt thự vườn 2 tầng mái thái mặt tiền 8m
Ngoại thất của mẫu biệt thự vườn 2 tầng mái thái là sự kết hợp hài hòa và cân đối của 2 gam màu: trắng và cam nhạt. Mang tới vẻ đẹp trẻ trung, nhẹ nhàng mà không kém phần tươi mới.
Biệt thự phong cách tân cổ điển là sự đơn giản hóa của kiến trúc cổ điển; Lấy những bức tường, hàng cột làm trọng tâm và làm nổi bật cấu tạo, chi tiết của bộ phận đó.
Phần mái che sảnh ngoài hình chữ A đồng bộ với cấu trúc mái. Điểm nhấn tập trung vào hệ thốn trụ cột vuông tròn được dựng đăng đối; Kết hợp khung bệ đỡ hình vòm tạo cảm giác duyên dáng và gần gũi cho công trình.
Hệ cửa kính cường lực trong suốt khung nhôm màu trắng đồng bộ với công trình. Tăng độ tiếp cận với ánh sáng tự nhiên cho không gian bên trong.
Mái thái mang nhiều ưu điểm phù hợp với khí hậu nhiệt đới gió mùa ở Việt Nam. Mái được thiết kế hình chữ A tạo nên một lớp khí đệm. Giúp tránh được sự hấp thụ nhiệt giúp không gian lầu 1 trở nên mát mẻ dù ngoài trời nóng bức.
- Biệt thự 2 tầng 120m2 không gian xanh gần gũi
- Thiết kế kiến trúc biệt thự vườn 2 tầng có bể bơi
- Biệt thự đẹp 2 tầng chữ L đẳng cấp châu Âu
Công năng biệt thự vườn 2 tầng mái thái mặt tiền 8m
Mặt bằng tầng 1:
- Gara ô tô nằm cách biệt với không gian sống, tránh gây ô nhiễm
- Phòng khách nằm ngay cạnh sảnh chính, diện tích rộng rãi, ngay sau đó là cầu thang bộ hình chữ U dẫn lên tầng 2
- Ngay sau gara là phòng bếp liên thông với khu vực ăn uống nằm sau cầu thang
- Cuối nhà là phòng wc chung, sàn nước và khu rửa
Mặt bằng tầng 2:
Tầng 2 với 3 phòng ngủ khép kín, 1 phòng ngủ nhỏ. 1 phòng thờ. Phần không gian còn lại KTS thiết kế 1 khoảng không gian mở là nơi để gia đình có không gian thư giãn.
Thứ Năm, 10 tháng 10, 2019
Biệt thự đẹp 2 tầng chữ L đẳng cấp châu Âu
Biệt thự 2 tầng chữ L đang rất được ưa chuộng ở các vùng quê hoặc những căn nhà có sân vườn. Để bổ sung vào bộ sưu tập những mẫu nhà chữ L đẹp thì bài viết sau đây chúng tôi sẽ gửi tới bạn đọc mẫu biệt thự đẹp 2 tầng chữ L mang tầm đẳng cấp châu Âu.
Nhà chữ l giúp cho việc phân bố các phòng trở nên dễ dàng hơn, đặc biệt là có thể tách biệt các phòng với nhau nhưng vẫn liên thông trong một thể thống nhất chung của ngôi nhà.
Đặc biệt, nhà chữ L phù hợp với nhiều hình dáng lô đất khác nhau. Từ hình vuông, hình chữ nhật hay cả những khu đất méo.
Mẫu biệt thự 2 tầng chữ L được thiết kế theo phong cách tân cổ điển mang hơi hướng châu Âu. Đơn giản hóa về hình khối, bố cục không gian giúp tạo ra những mặt bằng tự do phi đối xứng giúp loại bỏ toàn bộ các chi tiết rườm rà.
Công trình sử dụng những vật liệu hiện đại như cốt thép, bê tông, kính. Đây đều là những vật liệu phổ biến trong lĩnh vực kiến trúc.
Thiết kế mở với hệ cửa kính khiến phần ngoại thất trở nên thoáng sáng hơn. Hạn chế tối đa sự bí bách do các bức tường kín mít gây ra.
Màu trắng là gam màu chủ đạo, đây cũng là màu được ưu tiên lựa chọn trong các công trình biệt thự tân cổ điển, biệt thự Pháp. Tạo sự tinh tế, bóng bảy lại tươi sáng mới mẻ.
Điểm nhấn của phong cách tân cổ điển là sự chắc chắn của các trụ cột vuông tròn nằm đăng đối. Đỡ hệ mái góc chữ A và bệ đỡ hình tam giác. Tại các cạnh tường cũng được đắp thêm xi măng tạo hình giả cột, thân cột là các đường chỉ kẻ dọc càng khiến công trình thêm phần đẳng cấp hơn.
Việc đưa thêm ống khói giả ở góc chữ L khiến biệt thự 2 tầng chữ L sánh ngang với các công trình biệt thự đẳng cấp châu âu.
Mái thái lợp ngói đỏ đã là điểm nhấn mạnh mẽ giúp căn nhà thêm nổi bật cả một khu phố. Đặc biệt là hệ mái ban công và mái chính tạo sự phân cấp, đây cũng là điểm độc đáo của mẫu nhà đẹp.
Đôi nét về nhà chữ L
Ưu điểm của nhà chữ l là tạo nên vẻ đẹp trong kiến trúc và đẹp trong cách quy hoạch sân vườn tổng thể, tạo ra khoảng sân rộng rãi hoặc làm khu đỗ xe hay nơi vui chơi của trẻ em. Đặc biệt với những lô đất nhỏ muốn có thêm diện tích sân thì nhà chữ L là lựa chọn hàng đầu.Nhà chữ l giúp cho việc phân bố các phòng trở nên dễ dàng hơn, đặc biệt là có thể tách biệt các phòng với nhau nhưng vẫn liên thông trong một thể thống nhất chung của ngôi nhà.
Đặc biệt, nhà chữ L phù hợp với nhiều hình dáng lô đất khác nhau. Từ hình vuông, hình chữ nhật hay cả những khu đất méo.
Phối cảnh biệt thự đẹp 2 tầng chữ L phong cách châu âu
Mẫu biệt thự 2 tầng chữ L được thiết kế theo phong cách tân cổ điển mang hơi hướng châu Âu. Đơn giản hóa về hình khối, bố cục không gian giúp tạo ra những mặt bằng tự do phi đối xứng giúp loại bỏ toàn bộ các chi tiết rườm rà.
Công trình sử dụng những vật liệu hiện đại như cốt thép, bê tông, kính. Đây đều là những vật liệu phổ biến trong lĩnh vực kiến trúc.
Thiết kế mở với hệ cửa kính khiến phần ngoại thất trở nên thoáng sáng hơn. Hạn chế tối đa sự bí bách do các bức tường kín mít gây ra.
Màu trắng là gam màu chủ đạo, đây cũng là màu được ưu tiên lựa chọn trong các công trình biệt thự tân cổ điển, biệt thự Pháp. Tạo sự tinh tế, bóng bảy lại tươi sáng mới mẻ.
Điểm nhấn của phong cách tân cổ điển là sự chắc chắn của các trụ cột vuông tròn nằm đăng đối. Đỡ hệ mái góc chữ A và bệ đỡ hình tam giác. Tại các cạnh tường cũng được đắp thêm xi măng tạo hình giả cột, thân cột là các đường chỉ kẻ dọc càng khiến công trình thêm phần đẳng cấp hơn.
Việc đưa thêm ống khói giả ở góc chữ L khiến biệt thự 2 tầng chữ L sánh ngang với các công trình biệt thự đẳng cấp châu âu.
Mái thái lợp ngói đỏ đã là điểm nhấn mạnh mẽ giúp căn nhà thêm nổi bật cả một khu phố. Đặc biệt là hệ mái ban công và mái chính tạo sự phân cấp, đây cũng là điểm độc đáo của mẫu nhà đẹp.
- Mẫu thiết kế biệt thự 2 tầng 120m2 hiện đại
- Biệt thự 2 tầng mái dốc 7x14m ở Phúc Thọ – Hà Nội
- Mẫu nhà biệt thự 2 tầng mái dốc 10x12.5m
Mặt bằng công năng biệt thự đẹp 2 tầng chữ L
Tầng 1 bao gồm 1 phòng khách kết hợp đặt ban thờ, 1 phòng bếp kết hợp phòng ăn, 1 phòng ngủ có WC riêng bên trong. Ngoài ra còn có 1 phòng tắm kết hợp WC để đảm bảo nhu cầu sinh hoạt riêng của thành viên gia đình.
Tầng 2 gồm 1 phòng ngủ lớn có ban công, 2 phòng ngủ thường có WC khép kín, phòng SHC nằm cạnh cầu thang. Ngoài ra còn có một sân giặt + phơi nằm góc nhà.
Đào Xoan
Nguồn: Sưu Tầm
Thứ Sáu, 4 tháng 10, 2019
Mẫu biệt thự 2 tầng 1 tum mái thái siêu đẹp
Biệt thự 2 tầng 1 tum mái thái có diện tích 12x12m được thiết kế theo phong cách hiện đại. Sự kết hợp hài hòa cân đối của 2 gam màu: trắng - ghi, hệ mái thái và chiều cao 2.5 tầng đã tạo nên một công trình biệt thự sang trọng, bề thế và lịch lãm. Là niềm ao ước của nhiều hộ gia đình Việt.
Từ sảnh chính bước vào là phòng khách rộng rãi. Phía sau phòng khách là phòng bếp kết hợp với phòng ăn. Cầu thang đặt giữa, cạnh phòng khách. Hai bên cầu thang là 2 phòng ngủ và góc cuối nhà là phòng wc chung.
Tầng 2: bao gồm từ 3 phòng ngủ, 1 phòng sinh hoạt chung và 1 nhà vệ sinh. trong đó phòng ngủ lớn và phòng SHC có cửa mở ra ban công thoáng rộng. WC chung nằm cách biệt ở góc nhà.
Kiến trúc ngoại thất biệt thự 2 tầng 1 tum mái thái
Chủ nhà không muốn ngôi biệt thự của mình phải sở hữu hoa văn, phù điêu cầu kì. Chỉ cần đơn giản và đảm bảo công năng được bố trí khoa học, thuận tiện cho đời sống sinh hoạt.
Chính vì thế mà với ngoại thất, KTS chỉ tập trung vào những mảng khối trang trí bằng đá ốp granit nâu giúp cho căn biệt thự trông nổi bật hơn. Thậm chí các chi tiết phào chỉ cũng được lược bớt, thay vào đó là tạo sự góc cạnh của các bức tường. Mang tới vẻ đẹp khỏe khoắn cho tổng thể công trình.
Màu sắc của mẫu biệt thự 2 tầng mái thái được các kiến trúc sư phối hợp ăn ý giữa màu sơn và màu sắc của những vật liệu xây dựng. Cụ thể là sử dụng màu trắng làm chủ đạo, kết hợp hài hòa với các mảng tường ốp gạch thẻ màu ghi, cửa kính, khung cửa màu đen, mái nâu...
Hệ cửa kính khuung nhôm xingfa màu đen được ví như một mũi tên trúng nhiều đích. Không chỉ đảm bảo ánh sáng, tạo độ thoáng cho mặt tiền, cách âm tốt mà giá thành lại không quá cao.
Bân công thoáng rộng có mái che là nơi lí tưởng để thể dục, hít thở không khí trong lành và ngắm nhìn khung cảnh xung quanh. Lan can kính đồng điệu với hệ cửa, giúp phần mặt tiền trở nên thoáng hơn, thay vì xây tường sẽ khiến mặt tiền bị bí bách.
Nếu xửa kia mái bằng được ưa chuộng thì ngày nay, mái thái đã dần chiếm được sự quan tâm của chủ đầu tư. Mái thái giúp tôn vẻ duyên dáng, dịu dàng và thanh thoát. Thiết kế mái thái giật cấp mang đến nét mới lạ và độc đáo cho tổng thể căn nhà.
Mái thái không chỉ mang tính thẩm mỹ cao mà còn giúp tản nhiệt chống nóng tốt, lại vừa giúp chống dột, chống ngấm nước cho nhà đẹp.
Công năng biệt thự 2 tầng 1 tum mái thái
Tầng 1: bao gồm 1 phòng khách, 2 phòng ngủ, 1 phòng bếp + phòng ăn và 1 nhà vệ sinh dùng chung.Từ sảnh chính bước vào là phòng khách rộng rãi. Phía sau phòng khách là phòng bếp kết hợp với phòng ăn. Cầu thang đặt giữa, cạnh phòng khách. Hai bên cầu thang là 2 phòng ngủ và góc cuối nhà là phòng wc chung.
Tầng 2: bao gồm từ 3 phòng ngủ, 1 phòng sinh hoạt chung và 1 nhà vệ sinh. trong đó phòng ngủ lớn và phòng SHC có cửa mở ra ban công thoáng rộng. WC chung nằm cách biệt ở góc nhà.
Tầng tum chỉ còn phòng thờ và sân phơi. Trong đó phòng thờ được thiết kế chuẩn phong thủy để mang đến tài lộc và bình an cho gia chủ.
- mẫu nhà biệt thự phố 2 tầng tân cổ điển đẹp
- Tham khảo mẫu biệt thự đẹp 2 tầng 2 mặt tiền
Đào Xoan
Nguồn tham khảo: https://wedo.vn/
Thứ Tư, 2 tháng 10, 2019
Mẫu thiết kế biệt thự hiện đại 2 tầng 2 mặt tiền đẹp trẻ trung
Nhận thấy loại hình biệt thự 2 tầng nhận được nhiều sự ưu ái của chủ đầu tư hơn các căn biệt thự 4-5 tầng. Một phần bởi biệt thự 2 tầng có chi phí xây dựng phù hợp với khả năng kinh tế của phần đông các hộ gia đình Việt Nam. Chính vì thế mà ngày hôm nay, chúng tôi tiếp tục gửi tới quý bạn đọc một mẫu biệt thự hiện đại 2 tầng 2 mặt tiền. Cùng chúng tôi khám phá mẫu nhà đẹp này nhé!
Xu hướng nhà màu trắng vẫn chưa có dấu hiệu bị giảm nhiệt, đây vẫn là phương án được chủ đầu tư ưu tiên lựa chọn. Mang tới sự trẻ trung, tươi mới cho mẫu biệt thự 2 tầng 2 mặt tiền. KTS còn thêm vào những đường chỉ kẻ ngang tường cách đều nhau, chạy xuyên suốt quanh nhà. Làm giảm sự đơn điệu của các bức tường màu trắng đồng thời đánh lừa giác quan người xem.
Phòng bếp rộng rãi, gọn gàng ngăn nắp với bộ tủ bếp cao cấp bằng gỗ trắng và nâu. giữa 2 hệ tủ bếp là bức tường được ốp đá màu đen. Khi nấu nướng, dầu ăn có bắn lên tường cũng dễ lau chùi hơn.
Khu vực ăn được sắp xếp nằm cạnh khu vực bếp nấu. Bộ bàn ăn bằng gỗ với thiết kế đơn giản, mặt bàn ốp đá tạo sự sạch sẽ. Phía trên bàn ăn có quạt trần vừa có tác dụng trang trí, vừa có nhiệm vụi làm mát.
Điểm thông minh của không gian nội thất biệt thự 2 tầng là KTS có cách lấp đầy các khoảng trống. Ví dụ là gàm cầu thang ở tầng 1, KTS đã thiết kế một tủ đựng rượu ngay dưới gầm thang.
Kiến trúc biệt thự hiện đại 2 tầng 2 mặt tiền đẹp trẻ trung
Ngay từ lần đầu quan sát, biệt thự 2 tầng hiện đại toát lên một phong thái hiên ngang, trẻ trung và tươi sáng. Sở hữu những đường nét khỏe khoắn được tái hiện thông các mảng khối hình học với đa dạng kích thước, tạo sự độc đáo cho công trình nhà đẹp.
Tiếp đến là vật liệu sử dụng đều phổ biến trong các công trình kiến trúc hiện đại: đá ốp, gạch thẻ, cửa cuốn, cửa kính, khung nhôm, đá ốp.... Với nhiều màu sắc và có sự xen kẽ nhau. Tạo nên nét độc đáo cho kiến trúc biệt thự 2 tầng.
Xen lẫn vào là màu nâu của gạch thẻ ốp tường lan can tạo điểm nhấn mang lại cảm giác nhẹ nhàng mà tinh tế cho căn biệt thự.
Kính là vật liệu phổ biến được sử dụng cho hệ cửa nhằm lấy sáng cho không gian sống phía trong và tạo độ thoáng cho phần mặt tiền. Khung nhôm xingfa màu đen nổi bật trên nên trắng sáng.
Gara ô tô được bố trí nằm ngay cạnh mặt đường, cửa cuốn rộng rãi thuận tiện cho xe di chuyển.
Tường bao với kết cấu 2 phần: tường xây và hàng rào sắt. Bề mặt tường xây được ốp đá màu vàng nhạt sang trọng, vừa sạch sẽ lại tránh được ẩm mốc. Phía trên là các hàng rào sắt sơn tĩnh điện màu đen, đồng điệu với phần lan can của công trình chính.
Việc đưa thêm cây xanh tại sân trước nhà, ban công, sân thượng sẽ điểm tô thêm màu sắc cho công trình nhà đẹp. Thêm nữa là không khí sẽ trở nên trong lành hơn.
- Biệt thự 2 tầng phong cách tân cổ điển mái ngói
- Mẫu biệt thự nhà vườn 2 tầng 114m2 5 phòng ngủ
- Thiết kế biệt thự 2 tầng mái bằng hiện đại 120m2
Không gian nội thất biệt thự hiện đại 2 tầng 2 mặt tiền
Phòng khách hiện đại, sang trọng, không gian thoáng mát. Với điểm nhấn là bộ sofa vải hình chữ L và thảm trai màu xám. Phía sau kệ tivi là một tủ gỗ ngăn cách phòng khách với khu vực cầu thang.
Trần thạch cao được bố trí hệ đèn ốp trần thông minh đảm bảo độ sáng cho căn phòng. Đèn chùm giúp căn phòng trờ nên sang trọng hơn.
Khu vực ăn được sắp xếp nằm cạnh khu vực bếp nấu. Bộ bàn ăn bằng gỗ với thiết kế đơn giản, mặt bàn ốp đá tạo sự sạch sẽ. Phía trên bàn ăn có quạt trần vừa có tác dụng trang trí, vừa có nhiệm vụi làm mát.
Phòng ngủ chỉ sử dụng những món đồ vật thiết yếu nên không gian căn phòng luôn rộng rãi, thoáng mát. Nội thất bằng gỗ tạo sự mộc mạc, gần gũi cho không gian sống.
Đào Xoan
Nguồn tham khảo: http://xaydungvanoithat3d.com.vn/
Đăng ký:
Nhận xét (Atom)



















